Leased



South Brisbane QLD New retail centre Shops/Restaurant for lease 8m2 to 120m2 (8 shops)

62 Merivale street is located on the corner of Merivale Street and Russell Street directly opposite the convention centre. It is within immediate walking distance to Brisbane's CBD, the South Brisbane cultural precinct, South Brisbane and West End retail precinct. The property offers easy access to all forms of public transport including South Brisbane Train Station (250 metres); Cultural Centre Busway (450 metres); South Bank CityCat terminal (450 metres) and all major arterial roads.

New retail centre key features:

* Shops & Restaurant for lease from 8m2 to 120m2
* Innovative entertainment and food concept with an Asian Supermarket
* Mixed use zoning
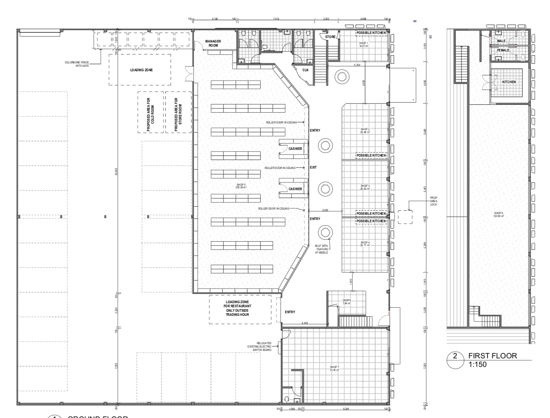
* 1500m2 with car parking
* Grease trap
* Ideal for Japanese sushi, Milk tea shop, Cafe, Chinese restaurant, Korea restaurant, Japanese barbecue, Seafood Bar, Flowers shop, Dessert etc
* Walking distance to Sky Wheel, Train station, Brisbane Convention & Exhibition Centre, Griffith University, southbank parkland those tourist attraction
* surrounding by apartments, student accommodation, hotels and university and schools.
* Incentives to the right tenants

Shops detail:
- Shop1 15m2- ( Leased)
- Shop2 25m2- ( Leased)
- Shop3 25m2- Available
- Shop4 24m2- ( Leased)
- Shop5 225m2 - universal asian supermarket ( Leased)
- Shop6 121m2
- Shop7
(Shop 7A 26m2) (Leased)
(Shop 7B 25m2) (Leased)
- Shop8 8m2



Price: Contact agent
Inspection: By appointment
Address:Merivale St South Brisbane QLD
Contact:
Conan Li 0404 617 767/07 3373 9887
Email: conan.li@yong.com.au

Disclaimer: We have in preparing this information used our best endeavours to ensure that the information contained herein is true and accurate, but accept no responsibility and disclaim all liability in respect of any errors, omissions, inaccuracies or misstatements that may occur. Prospective purchasers should make their own enquiries to verify the information contained herein.

Contact The Agent

Conan Li

Commercial Specialist
0404617767
Email Agent
View My Properties
Land Size 1811 Square Mtr approx.

Brochure

Share

Want to be the first to view new listings? Register for buyer's email property alert.


Yong Real Estate - Corporate 2026 | Privacy | Marketing by Real Estate Australia and ReNet Real Estate Software